
參數信息
案例名稱 | 輕奢美式風 | 戶型 | 三居室 | 案例面積 | 126㎡ |
風格 | 美式 | 店面 | 十里河 | 設計師 | 閆姍 |
設計說明
在藍白色調的優雅氣質中融入輕奢質感,加以清新愜意的氛圍營造,整體舒適安寧而不失格調。希望這套裝修案例能給準備裝修的大家帶來一些靈感。
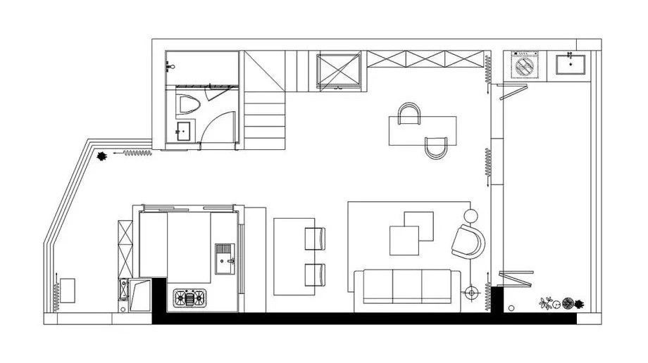
平面圖

客廳

門廳空間為異形空間,面積充足,所以在右側依墻形狀設立收納柜
臥室

主臥選用淡灰色墻面,色調清淺自然,木質地板的溫潤與清新提
廚房

主臥選用淡灰色墻面,色調清淺自然,木質地板的溫潤與清新提
衛生間

衛生間以灰白色為主調,簡約清透。大面積的鏡柜提供更多收納的同時,也擴展了空間視覺感。
本方案設計師