
參數信息
案例名稱 | 海棠花自在開—老房改造復古精致家 | 戶型 | 三居室 | 案例面積 | 120㎡ |
風格 | 美式 | 店面 | 十里河 | 設計師 | 馬茹靜 |
設計說明
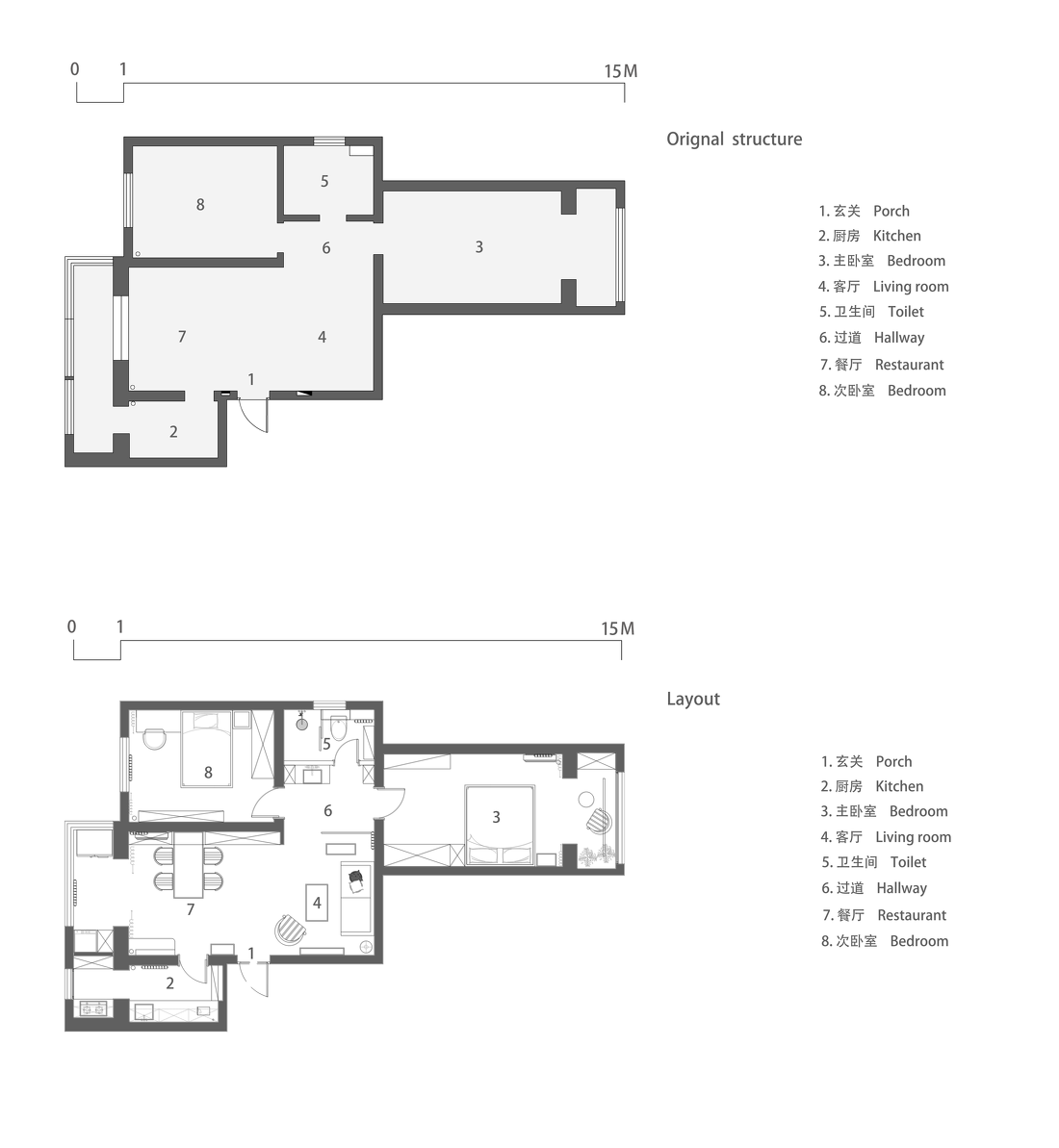
平面圖

客廳

這個設計的靈感來源于這座老式住宅區,實地考察的當天,在小區閑逛的時候偶然間看到了一件八十年代的老家具,是個帶有海棠花玻璃的小立柜,陽光透過海棠花造型的壓花玻璃,呈現一種若隱若現的迷離圖像,像油畫般真實而又模糊,那是一種虛虛實實的回憶。便想要打造一座遺世獨立的精致小屋,不懼風霜雷雨,像一朵海棠花一般,自在開放。

這個設計的靈感來源于這座老式住宅區,實地考察的當天,在小區閑逛的時候偶然間看到了一件八十年代的老家具,是個帶有海棠花玻璃的小立柜,陽光透過海棠花造型的壓花玻璃,呈現一種若隱若現的迷離圖像,像油畫般真實而又模糊,那是一種虛虛實實的回憶。便想要打造一座遺世獨立的精致小屋,不懼風霜雷雨,像一朵海棠花一般,自在開放。

這個設計的靈感來源于這座老式住宅區,實地考察的當天,在小區閑逛的時候偶然間看到了一件八十年代的老家具,是個帶有海棠花玻璃的小立柜,陽光透過海棠花造型的壓花玻璃,呈現一種若隱若現的迷離圖像,像油畫般真實而又模糊,那是一種虛虛實實的回憶。便想要打造一座遺世獨立的精致小屋,不懼風霜雷雨,像一朵海棠花一般,自在開放。

臥室

廚房

衛生間


