
參數信息
案例名稱 | 簡雅美宅 | 戶型 | 四居室 | 案例面積 | 175㎡ |
風格 | 簡約 | 店面 | 北四環 | 設計師 | 李鑫 |
設計說明
以優化空間為主要任務,設法使空間的每平方米面積都得到利用,為其提供了所有必要的功能。將公寓分為兩個區域布局,走廊、廚房和客廳的公共空間是這個項目最成功的解決方案。這個區域的中心是長凳旁邊的一棵樹,象征著家庭。
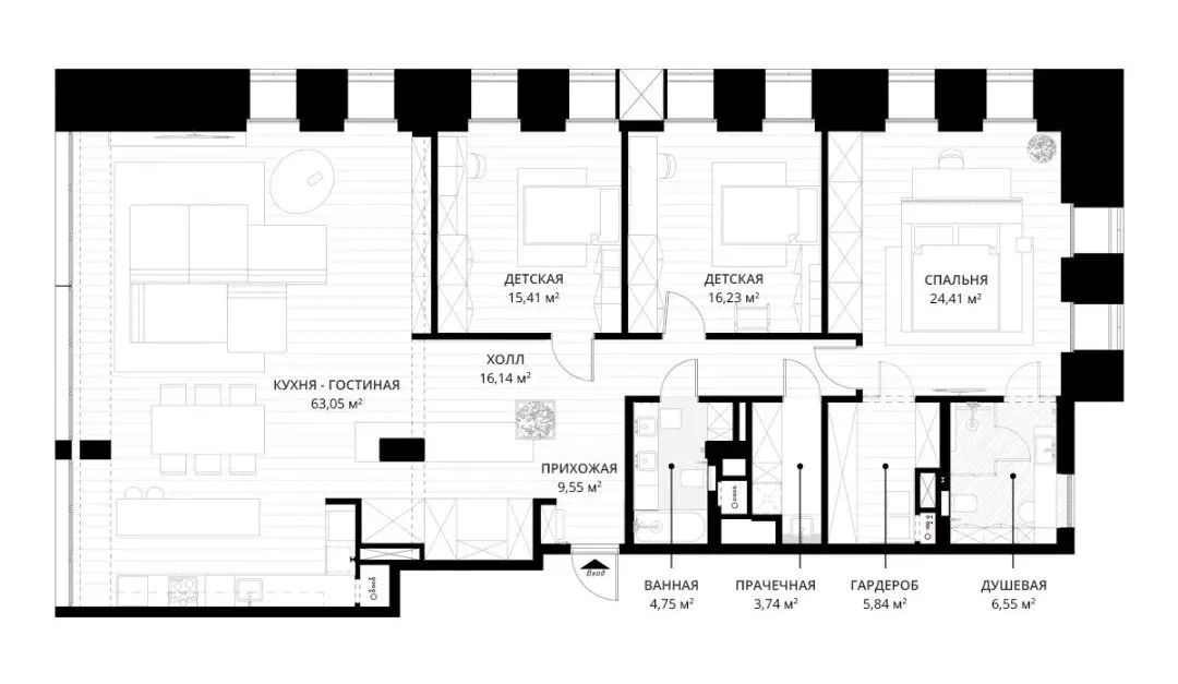
在公寓的私人部分有一個主臥室、一個更衣室和一個淋浴間、兩個兒童房、一個浴室和一個洗衣房的單一區域。
在公寓的私人部分有一個主臥室、一個更衣室和一個淋浴間、兩個兒童房、一個浴室和一個洗衣房的單一區域。
平面圖

客廳

該住所的主要優點是自由規劃、高挑的天花板、帶玻璃窗、所有房間以及浴室都是落地窗。客廳一整面墻的大書架,不管你愛不愛看書,也是實用的收納方案,也可以做置物架。
餐廳

臥室

衛生間

兒童房

本方案設計師