
參數信息
案例名稱 | 北歐情懷+日式質感 | 戶型 | 兩居室 | 案例面積 | 125㎡ |
風格 | 北歐 | 店面 | 北四環 | 設計師 |
設計說明
2. 入戶次臥一分為二,改為開放式多功能房+儲物間,滿足讀書休閑和臨時臥室等多種生活方式
3. 休閑陽臺和生活陽臺分開,擴入客廳打造綠意休閑空間
4. 主衛生間干濕分離,滿足屋主期望的雙臺盆需求
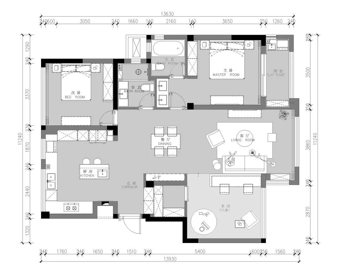
平面圖

客廳

電視墻用藝術涂料裝飾,充滿高級感。沙發墻改為半墻隔斷,透光透氣又能劃分空間。雖然空間面積有限,但是整個家給人直觀的感受是開敞、放松,展現愜意的家居氛圍。電視墻一側安裝壁爐,跳動的火苗帶來思想的靈感。
餐廳

空間布局上去中心化,餐廳、中島等一個個小中心取代客廳為主中心的傳統布局方式。餐廳同樣可以作為休閑、會客、辦公的區域。餐桌旁的邊柜擺放著主人收藏的各種器具、手辦。閑暇時,泡一杯茶,感受生活的美好。
臥室

低調、簡潔略帶中性的配色,讓人睡前享受靜美的時光。
廚房

開放式廚房,整體空間視覺上更加寬敞。廚房由兩個小空間合并而成,兩扇超大的窗戶極大的提升采光,一掃對廚房潮濕、油煙的印象,在家一樣可以整潔、優雅地做飯。
衛生間

衛生間延續主臥風格,做了干濕分離,方便實用。
書房

書房可拓展性非常強,我們保留了它與其他空間的關聯性,將地面整體抬高,用于明確空間的界限。
兒童房

兒童房選用溫柔的皮粉色作為主色,打造柔和舒適的睡眠環境。
400-001-0081 010-67488788