
參數信息
案例名稱 | 77平剛需戶型,極致空間利用。 | 戶型 | 三居室 | 案例面積 | 77㎡ |
風格 | 簡約 | 店面 | 十里河 | 設計師 | 馬茹靜 |
設計說明
根據業主需求,改造如下:
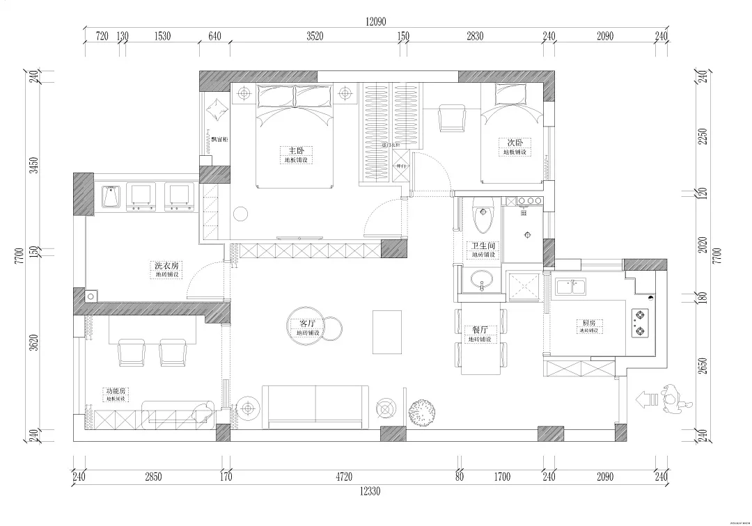
1、借用衛生間空間,冰箱外移,擴大廚房的操作區域;
2、改變廚房的開門方向,增加了空間的光線和動線的連貫性;
3、客廳外陽臺改為書房,同時兼做客房,實現三房的需求。
平面圖

客廳

原客廳狹小,采光不足。設計改變了主臥和客廳的隔墻位置,保證客廳的空間和采光。

藍色沙發靠墻擺放,沙發墻掛畫錯落有致。木質茶幾和邊柜設計,小巧靈活,整體配色很溫馨。

客廳和陽臺書房采用玻璃隔斷,三聯動玻璃門,大大引入自然采光,空間通透明亮。
餐廳

餐廳設置在廚房出口處,充分利用空間,而且縮短餐廚距離,動線更流暢。

原木餐桌椅休閑又舒適,搭配線性吊燈,營造良好的用餐氛圍。
臥室

主臥以白色調為主,搭配原木家居,溫馨又耐看。飄窗提供大量采光,臨窗設計全身鏡,方便整理著裝。

主臥衣柜采用嵌入式設計,收納空間充足。床頭柜臺面擺放小夜燈,方便晚上起夜。

通過主臥與陽臺的結構改造,嵌入梳妝臺組合柜,搭配燈光設計,精致又實用。
廚房

原廚房面積小,設計師借用部分衛生間空間,并且將冰箱外移,擴大廚房空間。

“U”型的櫥柜布局,收納充足,動線流暢,烹飪也更加方便。
衛生間

干濕分離提高衛生間的使用效率,黑色門框增加空間的厚重感,高級又時尚。

洗手臺外移,長方形的鏡子除了方便梳洗,還有增大視覺空間的效果。
書房

陽臺改為書房,三聯動的玻璃移門引入采光,空間通透明亮又大氣。

書房作為一個備用空間,既方便業主辦公學習,也可以充當臨時客房,一舉兩得。
兒童房

次臥改為兒童房,上下雙層床設計,大大增加空間的利用率。

除此之外,兒童房還布置衣柜、書柜、書桌等,學習和休息都兼顧。
玄關

原入戶空間狹小,設計師改變廚房門方向,加強空間光線和動線的連貫性。

入戶處設計鞋柜,滿足收納的需求。中間鏤空嵌入燈帶,打造回家的儀式感。