
參數信息
案例名稱 | 爆改49㎡小戶型,極致空間! | 戶型 | 一居室/小戶型 | 案例面積 | 49㎡ |
風格 | 簡約 | 店面 | 企鵝村文創園美晟家裝飾 | 設計師 | 章琰 |
設計說明
設計對空間進行打破重組,將空間規劃為公共區域和私密區。公共區滿足交流會客,就餐需求。私密區主要是衛生間,書房,臥室功能。臥室設計為臺階式榻榻米床,與飄窗做一個延伸。臺階式設計提供不同情境式的交流場景和視野,同時增加抽屜收納。
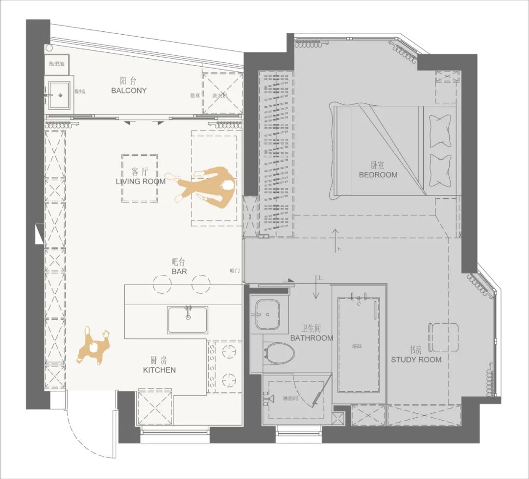
平面圖

客廳

客廳的無主燈設計為空間增添時尚感

U型廚房設計超大化利用空間。

臥室空間整體的地臺設計,保證功能實用,還為空間增添些許趣味性。

衛生間區域整潔雅致,黑白色瓷磚相互搭配,營造簡約氛圍。

借助陽臺打造的書房空間,小戶型的極致打造也不過如此。
本方案設計師