
參數信息
案例名稱 | 94㎡小兩居,用克萊因萊作跳色,空間既溫馨舒適又有亮點! | 戶型 | 兩居室 | 案例面積 | 94㎡ |
風格 | 現代 | 店面 | 企鵝村文創園美晟家裝飾 | 設計師 | 趙博洋 |
設計說明
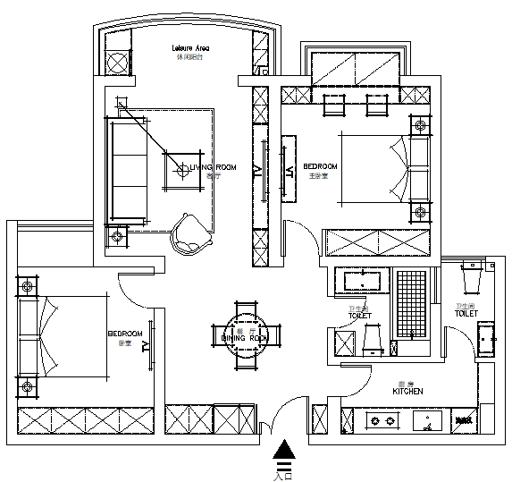
平面圖

客廳

空間整體層高不是很高,我們希望在打亮空間和物品的同時,不會有太多的明裝筒燈讓吊頂顯得凌亂。商量之后采用了滿吊頂安裝筒燈的方式,吊頂整體下吊三公分,讓空間不顯得壓抑。

餐廳我們采用了圓桌的形式,更符合中國人的用餐習慣,寬敞的餐廳可以隨時滿足4-6人的用餐。
如今家人之間大部分溝通時間是在餐桌上產生的,我們希望餐廳空間更加舒適,能夠增多家庭人員之間的溝通,增加家庭凝聚力。

主臥衣柜最后的地方因為有床頭柜的遮擋,加上整體收納空間也比較充足,我們把這一塊空置出來讓屋主擺放自己喜歡的東西。

廚房更多的是用來滿足洗、切、炒、盛等功能的流程,一字型的廚房更加合理。
我們還增加了儲物柜的功能,用來存放一些廚房用品,也將鍋爐包裹其中,在鍋爐柜的中空部分預留換氣,在安全性上也有很大的保障。

主衛主要是給到長輩使用,考慮到長輩的腿腳不方便,同時也為了讓長輩在使用的過程中更舒適和安全,我們預留了安全扶手的空間。清潔用品的收納也是放在了主衛,可以及時的清理規整。

長輩房的空間較沉穩,整體燈光也較溫馨,空間舒適度高,沒有做太多花里胡哨的裝飾。