
參數信息
案例名稱 | 百萬莊融城 | 戶型 | 兩居室 | 案例面積 | 120㎡ |
風格 | 現代 | 店面 | 十里河 | 設計師 | 徐盼 |
設計說明
居所,是生活記憶的延伸; 家,是心底溫情的寄托; 空間與生活相輔相成。風格上要帶有硬朗的質感,并帶有溫馨的感覺。
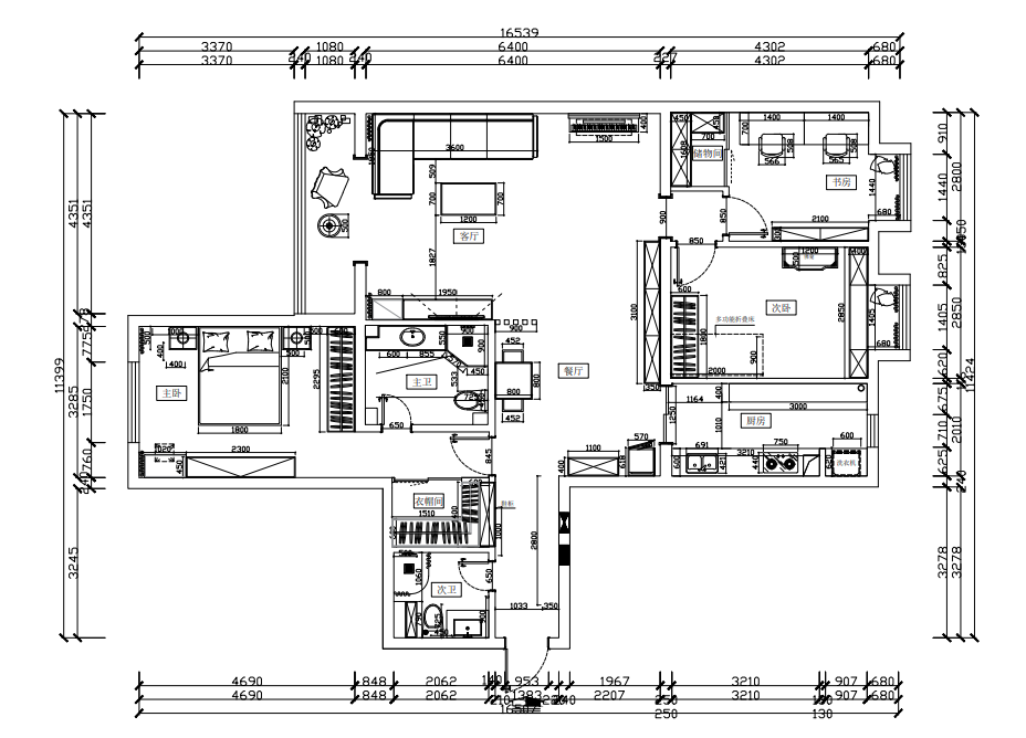
平面圖

客廳

客廳的地板以胡桃木為主調,展現一個休閑且質感的氛圍,沙發背景墻處理相當簡潔而富品味,裝飾畫提升空間的豐富度,展現出的是港式家居風格。追求溫馨、平靜、安逸的暖白系貫穿主題。
餐廳

黑白色調的斑馬掛畫與餐桌黑色臺面調協統一,給人以強烈的現代感,裝飾屏風是過道會客廳間過度的橋梁,也保證了客廳的隱私性。
臥室

主臥以沉穩大氣為主,且不失溫馨。以色彩和家具合理的擺放滿足使用要求,燈光的點綴把每件物品都照射得更宜溫馨特別,床頭背景墻彰顯大氣,從細節上體現業主的審美和內涵。
廚房

本方案設計師